Este sitio web utiliza cookies para que usted tenga la mejor experiencia de usuario. Si continúa navegando está dando su consentimiento para la aceptación de las mencionadas cookies y la aceptación de nuestra política de cookies.

EDIFICIO RESIDENCIAL EN SAN RAFAEL DE LA ALBAIDA

Información

Precio:
485.000 €
Referencia:
05269
Tipo de Inmueble:
Pisos
Estado:
En Venta
Sup.:
292.00 m2
Hab. Dobles:
8
Baños:
4
Antigüedad:
-
Garaje:
Si

Descripción

EDIFICIO RESIDENCIAL EN SAN RAFAEL DE LA ALBAIDA

Presentamos este edificio completo situado en la tranquila y consolidada barriada de San Rafael de la Albaida, en Córdoba, una zona residencial bien comunicada y con todos los servicios cercanos.

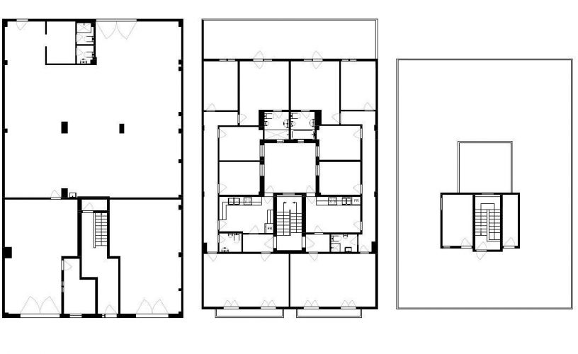
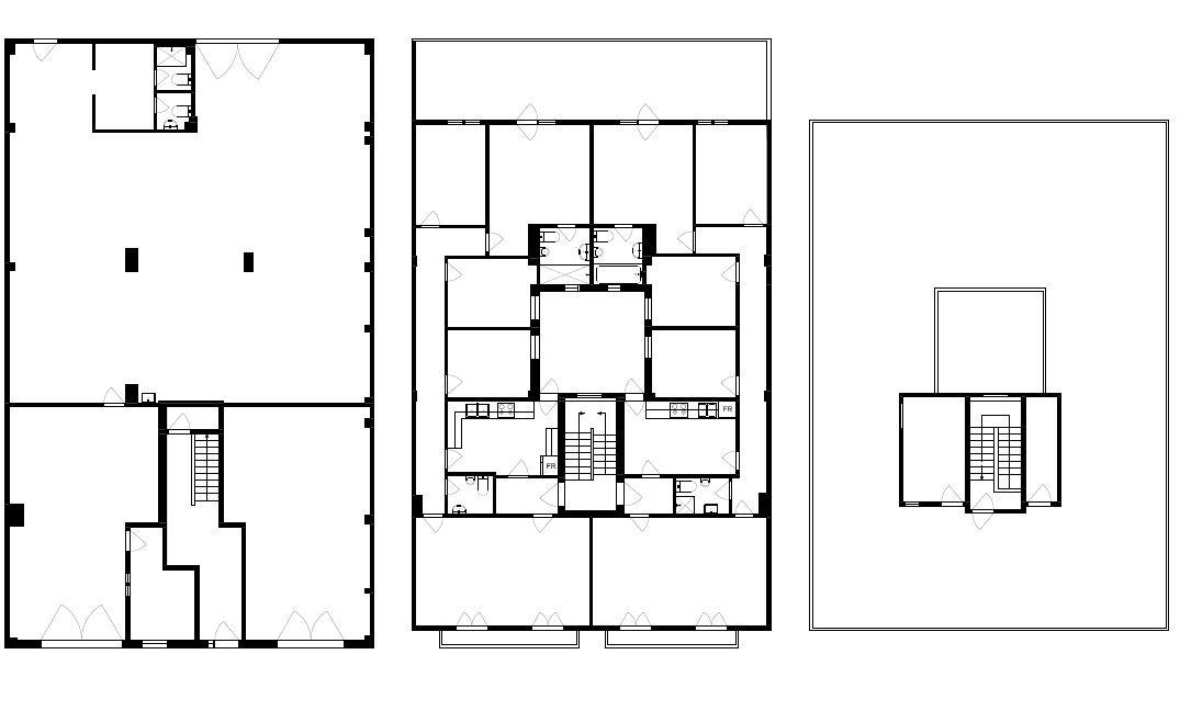
La propiedad se asienta sobre una parcela de 312 m² y cuenta con una superficie útil en Planta baja de 301m² (repartidos en dos locales, con múltiples posibilidades de uso y salida a dos calles). En la planta alta la superficie útil es de 235 m² repartidos en dos viviendas. La terraza-ático cuenta con 275 m² de superficie útil.


En la planta baja destacamos un portal de acceso central y amplia cochera.

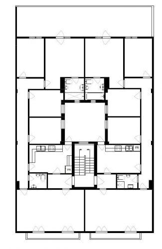
En la planta alta: Dos viviendas independientes y simétricas, ideales para familias numerosas o para alquiler. Cada vivienda dispone de: Vestíbulo, salón-comedor, cocina independiente, pasillo distribuidor, cuatro dormitorios, dos cuartos de baño, patio interior y caja de escaleras. A destacar la ventilación cruzada y la orientación (este-oeste) del inmueble.

En la cubierta: azotea transitable con castillete, perfecta como espacio de ocio, solárium o zona técnica.

Características destacadas: Edificio sólido y bien distribuido. Ideal para inversores, familias que buscan varias viviendas en un mismo inmueble o para reforma y redistribución. Como solares ideal para la construcción de cuatro viviendas.
El precio anunciado, no tiene caducidad, pero pueden ser alterados sin previo aviso, y NO incluye ni impuestos ni otros gastos asociados a la compraventa que deben ser sumados al precio de compra. Disponemos del “Documento de Segundas o Ulteriores Transmisiones” a disposición del cliente en nuestra oficina. El mobiliario que aparece en las fotografías, no está incluido.
De conformidad con lo dispuesto en el art 20.1 del TRLDCU, de Ley 10/2025, de 26 de diciembre, el precio del inmueble SE INCREMENTARÁ en los siguientes importes:
IMPUESTO A CARGO DEL COMPRADOR
En ITP sobre el mayor sobre el mayor de los valores entre el precio de venta o el de referencia catastral oscilando entre el 3.5% y el 7% en función de las condiciones del comprador, todo ello de acuerdo en el Real Decreto Legislativo 1/1993, de 24 de septiembre.
NOTARIA Y REGISTRO: Son gastos sometidos a arancel, según el Real Decreto 1426/1989, de 17 de noviembre, por el que se aprueba el Arancel de los Notarios y Real Decreto 1427/1989, de 17 de noviembre, por el que se aprueba el Arancel de los Registradores de la Propiedad respectivamente.
HONORARIOS PROFESIONALES DE LA AGENCIA INMOBILIARIA: No incluidos en el precio de compra y su importe a cargo del comprador será de un 2% del precio final de venta más el 21% de IVA con un mínimo de 3.500 € más el 21% de IVA. Y de una mensualidad de renta en caso de alquiler (exento en los alquileres con destino de vivienda permanente) más el 21% de IVA, estos honorarios no están incluidos en el precio publicado. Dicho importe se abonará en concepto de honorarios, por la prestación de servicios relacionados con la formalización, asesoramiento y gestión documental de la compraventa.
EN EL CASO DE PRECISAR FINANCIACIÓN BANCARIA: El importe de los gastos adicionales deberán ser consensuados con la entidad financiera.
PARA EL CALCULO DEL PRECIO FINAL DEFINITIVO ROGAMOS CONTACTEN CON DOBLE ELE MEDIACIÓN INMOBILIARIA S.L.

Características

  • Salón
  • Salón-comedor
  • Comedor
  • Cocina
  • Balcón
  • Trastero
  • Luz
  • Terrazas
  • Aire Acondicionado
Promociones