Este sitio web utiliza cookies para que usted tenga la mejor experiencia de usuario. Si continúa navegando está dando su consentimiento para la aceptación de las mencionadas cookies y la aceptación de nuestra política de cookies.

EDIFICIO COMPLETO EN PLENO CENTRO

Información

Precio:
800.000 €
Referencia:
0800256
Tipo de Inmueble:
Pisos
Estado:
En Venta
Sup.:
632.00 m2
Antigüedad:
1977
Garaje:
No

Descripción

Se ofrece en venta EDIFICIO COMPLETO situado en una de las zonas más céntricas y consolidadas de Córdoba con excelente conexión y todos los servicios a su alrededor. Una oportunidad única tanto para inversores como para quienes buscan un inmueble versátil con múltiples posibilidades de rentabilidad o uso propio.

La propiedad se distribuye en varias plantas claramente diferenciadas lo que permite destinar cada espacio a distintas finalidades.

PLANTA BAJA

Actualmente acondicionada como oficina. Dispone de cuatro estancias independientes que permiten organizar despachos salas de reuniones o zonas de atención al público. Cuenta con un aseo y caja fuerte.

PRIMERA Y SEGUNDA PLANTA

Ambas plantas albergan viviendas de distribución similar con espacios amplios. Cada una dispone de salón con CHIMENEA, cocina independiente, cuatro dormitorios y dos baños completos.

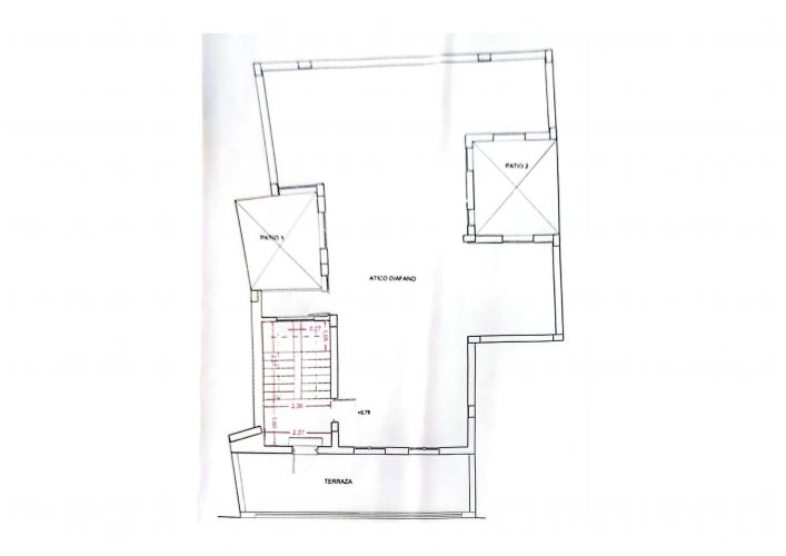
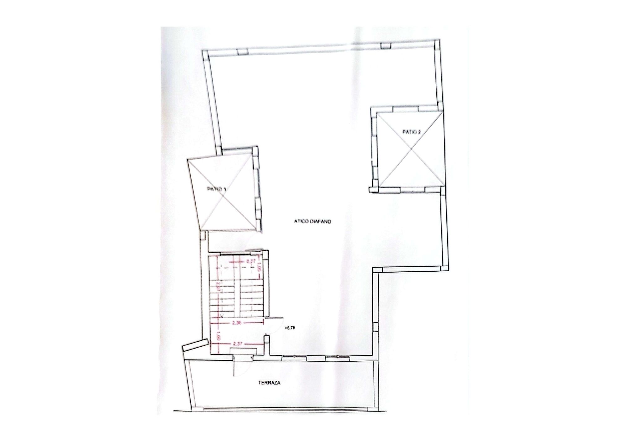
ÁTICO

La planta superior ofrece cuatro habitaciones adicionales y dos baños. Acceso a una azotea privada distribuida en dos niveles. Un espacio exterior con múltiples posibilidades zona de ocio, solárium o acondicionamiento como espacio común

PLANTA SÓTANO - GARAJE con capacidad para dos o tres vehículos un valor añadido especialmente relevante en zona centro.

La vivienda dispone de proyecto aprobado por la gerencia municipal de urbanismo para instalación de ascensor.

P.V.P - 800000 €

INFORMACIÓN ADICIONAL: Para cumplir con la normativa vigente tenemos a disposición del cliente el Documento Informativo Abreviado (DIA). Los precios indicados no tienen caducidad pero pueden ser alterados sin previo aviso. En caso de venta, el precio corresponde únicamente al inmueble. Los gastos de la compraventa serán según ley (Notaría, Registro de la Propiedad e Impuestos) y no están incluidos en el precio del inmueble reflejado, al igual que no están incluidos los honorarios por la gestión y asesoramiento de la Agencia Doble Ele Inmobiliaria que ascienden a un 2 % del precio final de venta más el 21% de IVA (con un mínimo de 3.500 € más el 21% de IVA).

Características

Promociones